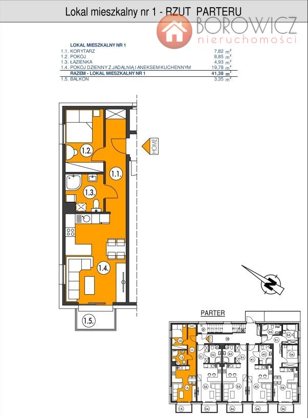
| Nowe gotowe mieszkania w Bielsku-Białej – mieszkania oddane do użytkowania, pompa ciepła i fotowoltaika w standardzie To idealna propozycja dla osób poszukujących nowoczesnego i wygodnego mieszkania w cichej, zielonej okolicy, z doskonałym dostępem do miejskiej infrastruktury. W tej ofercie proponujemy Państwu mieszkanie nr 1, usytuowane na parterze. Ma ono 2 pokoje i powierzchnię użytkową 41,38 m² i składa się z pokoju dziennego połączonego z jadalnią i aneksem kuchennym (19,78 m²), korytarza (7,82 m²), sypialni (8,85 m2) oraz funkcjonalnej łazienki (4,93 m²). Dodatkowym atutem lokalu jest balkon o powierzchni 3,35 m². Cena tego mieszkania wynosi 399 730,80 zł. Do lokalu obligatoryjnie trzeba dokupić 2 miejsca postojowe zewnętrzne, bądź 1 miejsce postojowe zewnętrzne i 1 miejsce postojowe w garażu podziemnym. Cena jednego miejsca postojowego zewnętrznego 21 000 zł. Cena jednego miejsca w garażu 39 500 zł. Przy zakupie nie płacisz podatku PCC, co oznacza oszczędność 2% ceny zakupu. Inwestycja oferuje różnorodne mieszkania – od 1-pokojowych, po 2-pokojowe i 3-pokojowe. Budynek, w którym znajduje się 15 mieszkań, jest położony zaledwie 1600 metrów od centrum miasta, co gwarantuje szybki dostęp do najważniejszych punktów usługowych i rekreacyjnych. Podana w ogłoszeniu cena dotyczy mieszkania w stanie deweloperskim. W ofercie posiadamy też mieszkania w standardzie "pod klucz" Cechy, które wyróżniają naszą inwestycję: - Ogrzewanie podłogowe w każdym mieszkaniu, co zapewnia komfort i oszczędność - Pompa ciepła zasilająca ogrzewanie i ciepła wodę użytkową - Fotowoltaika wspomagająca pompę ciepła - Miejsca parkingowe dostępne na zewnątrz i w garażu podziemnym. - Balkon w każdym mieszkaniu - Nowoczesne okna przesuwno-uchylne i ogrodzona posesja. - Szybki dostęp do dróg wylotowych w każdym kierunku. - Bliskość centrum miasta i spokojna okolica z niską zabudową mieszkalną. Zapraszam do kontaktu – chętnie odpowiem na wszystkie pytania i umówimy się na prezentację! |



