Nowe gotowe mieszkanie w Bielsku-Białej, wykończone pod klucz
– Inwestycja zakończona, mieszkania oddane do użytkowania, pompa ciepła i fotowoltaika w standardzie
To idealna propozycja dla osób poszukujących nowoczesnego i wygodnego mieszkania w cichej, zielonej okolicy, z doskonałym dostępem do miejskiej infrastruktury.
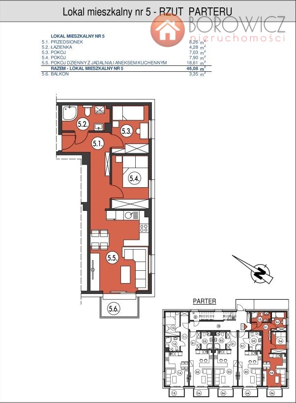
W tej ofercie proponujemy Państwu mieszkanie nr 5, usytuowane na parterze.
Ma ono powierzchnię użytkową 46,08 m² i składa się z pokoju dziennego połączonego z jadalnią i aneksem kuchennym (18,61 m²), przedsionka (8,26 m²), sypialni (7,03 m2), pokoju (7,90 m2) oraz łazienki (4,28 m²). Dodatkowym atutem lokalu jest balkon o powierzchni 3,35 m².
Cena tego mieszkania wynosi 479 232,00 zł.
Do lokalu obligatoryjnie trzeba dokupić 2 miejsca postojowe zewnętrzne, bądź 1 miejsce postojowe zewnętrzne i 1 miejsce postojowe w garażu podziemnym.
Cena jednego miejsca postojowego zewnętrznego 21 000 zł.
Cena jednego miejsca w garażu 39 500 zł.
Przy zakupie nie płacisz podatku PCC, co oznacza oszczędność 2% ceny zakupu.
Inwestycja oferuje różnorodne mieszkania – od 1-pokojowych, po 2-pokojowe i 3-pokojowe.
Budynek, w którym znajduje się 15 mieszkań, jest położony zaledwie 1600 metrów od centrum miasta, co gwarantuje szybki dostęp do najważniejszych punktów usługowych i rekreacyjnych.
Podana w ogłoszeniu cena dotyczy mieszkania w stanie tzw. pod klucz (bez mebli)
W ofercie posiadamy też mieszkania w standardzie developerskim
Cechy, które wyróżniają naszą inwestycję:
- Ogrzewanie podłogowe w każdym mieszkaniu, co zapewnia komfort i oszczędność
- Pompa ciepła zasilająca ogrzewanie i ciepła wodę użytkową
- Fotowoltaika wspomagająca pompę ciepła
- Miejsca parkingowe dostępne na zewnątrz i w garażu podziemnym.
- Balkon w każdym mieszkaniu
- Nowoczesne okna przesuwno-uchylne i ogrodzona posesja.
- Szybki dostęp do dróg wylotowych w każdym kierunku.
- Bliskość centrum miasta i spokojna okolica z niską zabudową mieszkalną.
Zapraszam do kontaktu – chętnie odpowiem na wszystkie pytania i umówimy się na prezentację!



